在加工零件上的平面、溝槽、缺口、花鍵及成形面時經常會提到一種工藝——銑加工。那么,相應的銑床夾具是如何配套設計的呢?
按照銑削時的進給方式,通常將銑床夾具分為:直線進給式、圓周進給式及靠模銑夾具。
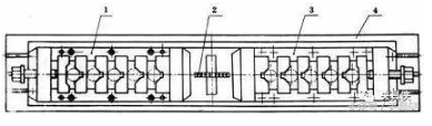
這類夾具安裝在銑床工作臺上,在加工中隨工作臺按直線進給方式運動。按照在夾具中同時安裝工件的數目和工位多少分為單件加工、多件加工和多工位加工夾具。

圖1 多件加工的直線進給式銑床夾具
1-小軸 2-活動V形塊 3-彈簧 4-夾緊元件 5-薄膜式汽缸 6-支承釘 7-導向柱 8-定位鍵 9-對刀塊

圖2 雙向進給銑床夾具
1、3-夾具 2-銑刀 4 -銑床工作臺
圓周進給銑床夾具多用在回轉工作臺或回轉鼓輪的銑床上,依靠回轉臺或鼓輪的旋轉將工件順序送入銑床的加工區域,實現連續切削。在切削的同時,可在裝卸區域裝卸工件,使輔助時間與機動時間重合。

圖3 圓周進給銑床夾具
1-拉桿 2-定位銷 3-快換墊圈 4-擋銷 5-轉臺 6-液壓缸
帶有靠模裝置的銑床夾具,適用于專用或通用銑床上加工各種成形面。靠模夾具的作用是使主進給運動和由靠模獲得的輔助運動合成加工所需的仿形運動。

圖4 直線進給式靠模銑床夾具
1-工件 2-銑刀 3-靠模 4-滾子 5-滾子滑座 6-銑刀滑座

圖5 圓周進給式靠模銑床夾具
1-工件 2-靠模 3-回轉工作臺 4-滑座 5-滾子 6-銑刀
加工需求:工件為一水泵葉輪,要求設計一副銑床夾具,用在臥式銑床上加工兩條互成90°的十字槽,如圖6、7所示:

圖6

圖7 工件三圍結構圖
確定定位方案:圓柱孔定位和平面定位
1.將加工過的葉輪底面放置在一個大的圓形定位盤上,以大平面定位,消除X,Y方向的轉動自由度和Z方向的移動自由度。
2.用一個定位銷與葉輪上的孔相配合,以此消除X,Y的移動自由度。
3.利用兩塊開槽的壓板從兩個方向卡住葉片,并將它們固定在定位盤上,這樣就消除了Z方向的轉動自由度。

圖8

圖9 定位裝置
確定夾緊方案:螺旋夾緊
1.工件以中心孔及底面在定位銷和定位盤的端面上定位,并使葉輪上的葉片與壓板頭部的缺口對中,旋轉螺母,通過杠桿使兩塊壓板同時夾緊工件。
2.選用移動式彎曲壓板,它的優點是可以實現快速裝拆。

圖10 夾緊裝置
確定分度機構:分度盤加定位銷
1.設計一個分度盤,盤底有四段斜槽,分度盤與定位盤之間用螺釘固定。
2.在夾具體上開一沉頭孔,孔中放入銷套,銷套與定位銷配合,底部有彈簧.這樣,當分度盤轉動時,銷始終在斜槽中運動.每轉過90°,銷就在彈簧的作用上升至最高點,反靠夾緊。

圖11

圖12 分度裝置

圖13夾具體與定位鍵

圖14夾具工程圖